楼宇详情
东方广视研发楼项目位于北京市海淀区中关村软件园二期用地内,中关村软件园位于上风上水的北京市海淀区东北旺,是国家软件产业基地。软件园区东临未明视通研发楼,南临东软北京研发中心,西接智能配电网技术研发楼,北临北京气象卫星地面站。中关村软件园二期建成后,软件园将聚集 350~400 家企业,聚集 7 万~8 万高端人才,产业规模超过 1000 亿元,成为软件领域具有国际影响力的科技创新中心。(更多上地写字楼)
中关村软件园的修建性详细规划,是以“浮岛”为设计理念,一个个不同面积的地块,如同散布在规划用地内的卵形“湖水”,之间由绿色森林环抱,每滩“湖水”内设置一个研发组团,置身于这样的环境中,有森林中独户人家的感受。建筑。水面、森林与人共同组成了一个优美、静谧适合脑力工作的办公环境。
本项目位于海淀区中关村软件园二期 D-2 地块,规划用地位于北五环路北,北清路南,东侧为软件园一期用地,西侧为西北旺村,用地东侧临近城铁 13 号线和八达岭高速公路,交通非常便利。规划用地东邻东北旺西路(红线宽度 30m),南邻西北旺南路(红线宽度 40m),西邻西北旺东路(红线宽度 30m),北邻后厂村路(红线宽度 40m)。
|
大厦参数 |
|
|
用地性质: |
科研用地 |
|
用地面积: |
12220.88平方米 |
|
总建筑面积(地上): |
10265.54平方米 |
|
建筑密度: |
38% |
|
容积率: |
0.84 |
|
绿地率: |
18% |
|
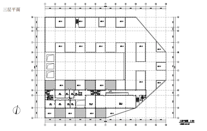
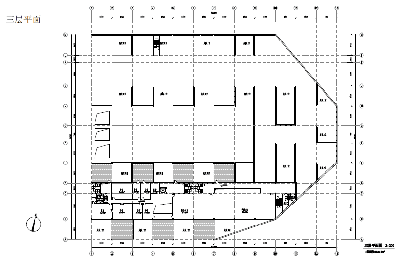
建筑层数: |
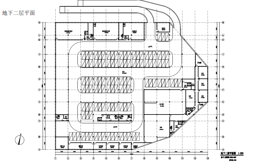
1~3F/-2F 层 |
|
建筑高度: |
13.4 米 |
|
停车数量:110 辆 |
110 辆 |
|
地上停车位: |
无 |
|
地下停车位: |
110 辆 |
|
非机动车停车位: |
200 辆 |
您最近查看的楼宇



18500695152